008

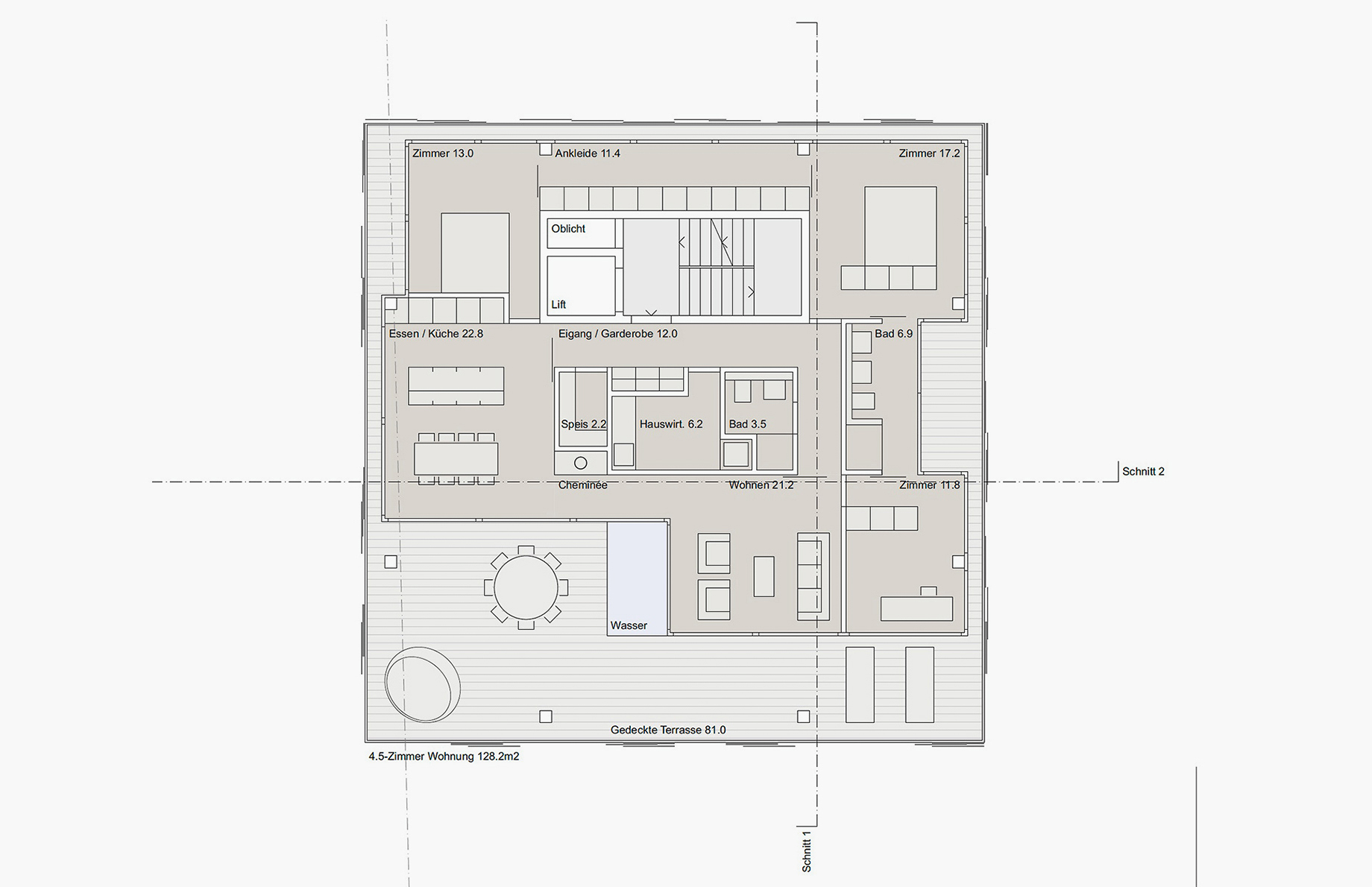
Wohnüberbauung
Delehala Mauren

Standort
Delehala
9493 Mauren

Bauherrschaft
Privat
Vertretung durch Axalo Immobilien AG, Schaan

Verfahren
Wettbewerb

Status
Wettbewerb, 2. Rang

Zeitraum
2017